armazém cowork

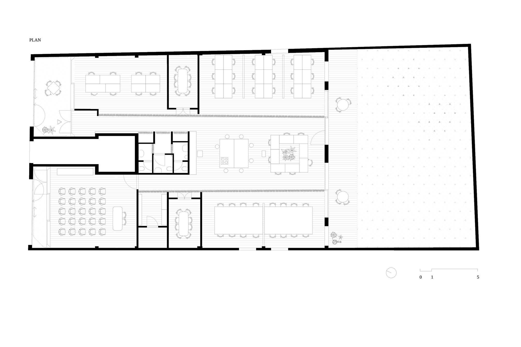
Um antigo armazém no Porto, vazio há 44 anos e ocupando o piso térreo anónimo de um edifício de habitação num bairro que, ao longo das últimas décadas, foi sendo abandonado pelo comércio e pelos serviços, ganhou uma nova vida. A oitoo transformou-o no armazemcowork e instalou aí o seu próprio atelier. O projeto é uma reflexão sobre o potencial oculto dos pisos térreos subutilizados e constitui-se como um protótipo para a sua reativação.

Pretende-se demonstrar as qualidades e oportunidades inerentes a estes espaços frequentemente negligenciados, contrariando a perceção generalizada de que os pisos térreos são inseguros, inóspitos ou inadequados para trabalhar ou habitar. Quando permanecem vazios, retiram vitalidade ao espaço público: caminhar por um arruamento ladeado de lojas fechadas é uma experiência desoladora, e essa ausência alimenta um ciclo de má utilização do espaço urbano, produzindo ruas desconfortáveis e sem vida.

A mudança de uso — de armazém para espaço de cowork — procura devolver ao piso térreo o seu papel enquanto camada ativa e social da cidade. Um espaço de transição faz a mediação entre a rua e as áreas de trabalho, funcionando simultaneamente como limiar e como montra das atividades no interior. No fundo do lote, um jardim inesperado oferece um cenário exterior generoso, adequado tanto ao trabalho como ao lazer, completando a reativação do espaço.
Ano
2017-2018
Localização
porto / portugal
Tipologia
cowork / reuso adaptativo
Estado
construído
Área
416 (área construída) 630 (área do lote) m2
Cliente
privado
Créditos fotográficos
ricardo loureiro