casa do zambeze

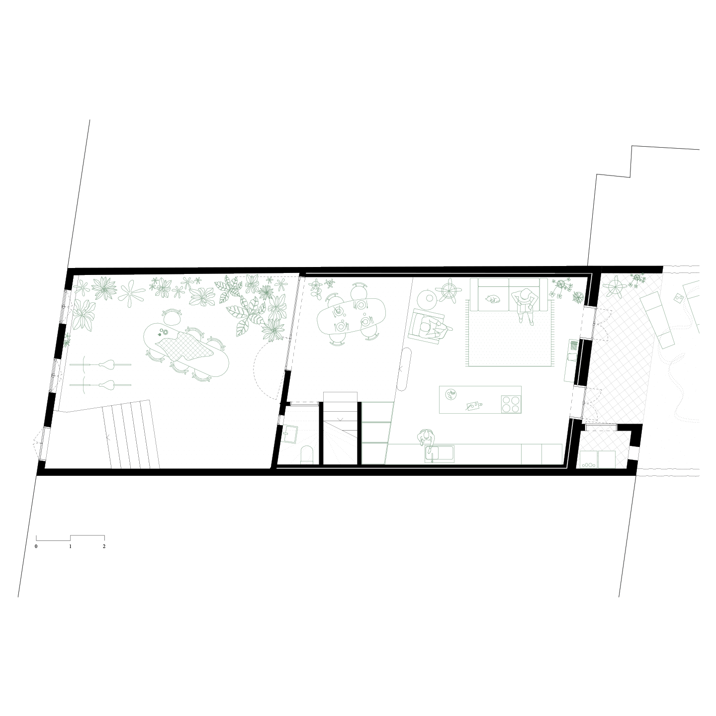
O projeto transforma o interior de uma moradia em banda do início do século XX, adaptando o edifício às necessidades de uma jovem família.

Cria-se um espaço coberto e generoso que estabelece uma transição entre a rua e o interior doméstico — uma “meia casa” — desenvolvida ao longo de três pisos. Esta solução valoriza simultaneamente a relação com o amplo vazio frontal e com o jardim no tardoz, tirando partido da profundidade do lote para qualificar os três momentos espaciais.
Ano
2025_
Localização
porto / portugal
Tipologia
residencial / reuso adaptativo
Estado
em curso
Área
190 (área construída) 270 (área do lote) m2
Cliente
privado